Portfolio
Toggle navigation
Our Company
Portfolio
Our Communities
Custom Building
Testimonials
Awards
Contact Us
Portfolio
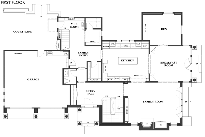
Atlee Road, Wayne
First Floor
Second Floor
Lower Level
Click on the links above to view floorplans.
Click on any photo to enlarge.
© Copyright 2016 B. J. Drueding Builders LLC.